CASA AB.26

IN COLLABORAZIONE CON:
ARCH. DANIELE BURATTINI

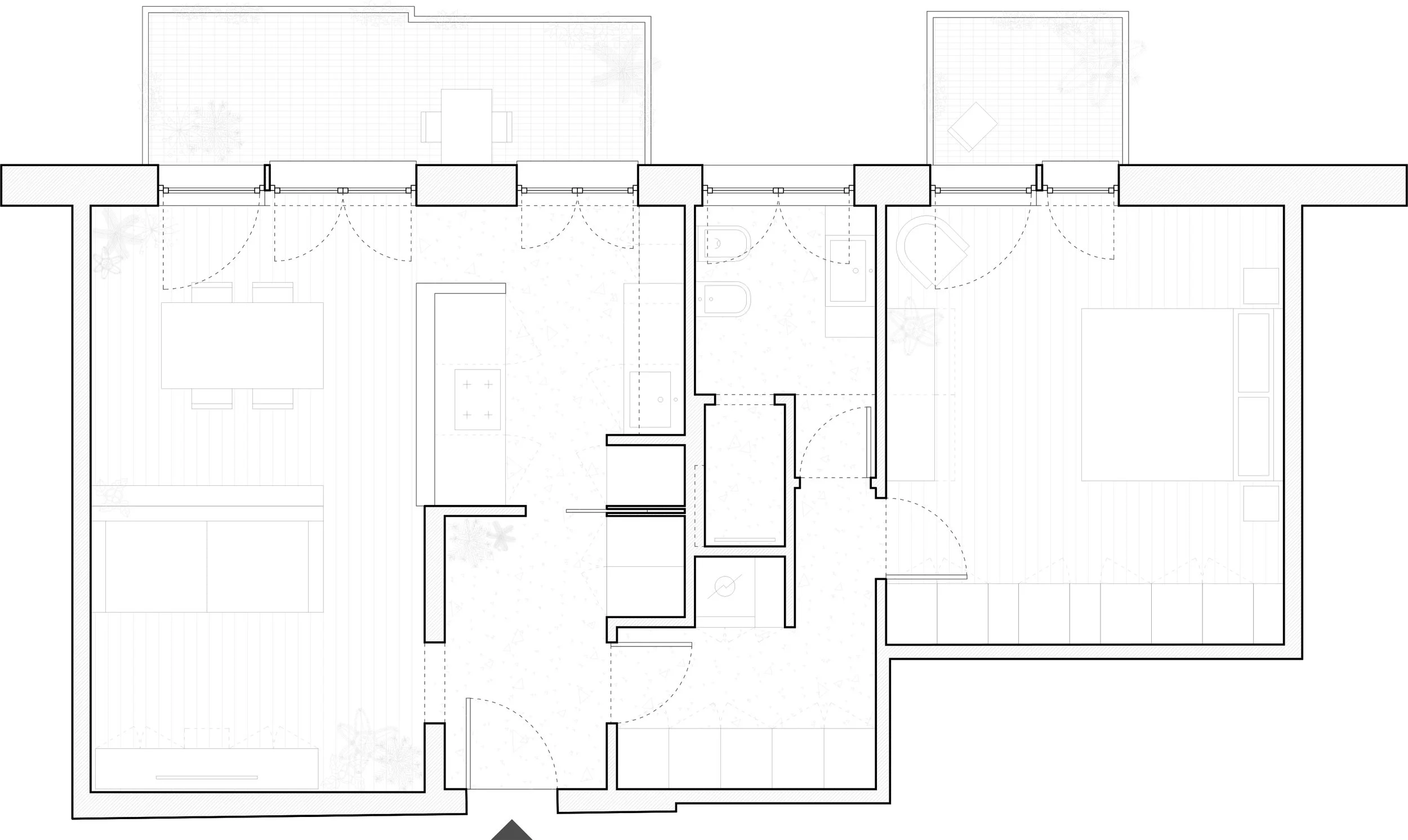
Tra il parco dell’Appia Antica e le Mura Aureliane, a Roma, prende vita il progetto per un appartamento di una giovane coppia in cui è nettamente distinta una zona notte e una zona giorno. Quest’ultima è caratterizzata da ingresso, soggiorno e cucina che, senza rigide gerarchie, sono organizzate secondo una fluidità circolare degli spazi, i cui ambienti si prestano perfettamente ad accogliere sia momenti conviviali che situazioni più raccolte.

Nel lato opposto, si trovano una spaziosa camera da letto e un bagno accessibile facilmente da tutti i punti della casa.

Le grandi porzioni vetrate e la presenza di due balconi che affacciano su un parco, garantiscono una forte continuità tra interni ed esterni.

Il primo ambiente ad essere stato progettato è stato l’ingresso che, interamente tinteggiato color ocra, assume il suolo di “lanterna” della casa, dal momento che sembra brillare di luce propria.

Lungo l’asse trasversale, due aperture simmetriche connettono la zona giorno con il disimpegno che porta ai servizi e alla zona notte. Di fronte, il prospetto è caratterizzato dalla perfetta dicotomia tra pieno e vuoto: una parete cieca si affianca ad un’apertura scorrevole in vetro cannettato che porta direttamente alla cucina.

Indietro
Indietro

Casa LC.9

Avanti
Avanti

Let Me B